Description
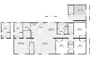
Model Details: This beautiful 4/3 double wide mobile home not only has the space you need, but the modern style you are looking for as well. Check out this spacious floor plan!Call or contact us today to find out more about this model.
*Some Images Contain Additional Upgrades Not Included In Base Price.
Disclaimer For All New Home Models:
Due to continual improvements and adjustments at the manufactured home factories we work with, some of the floor plans you see her may be subject to minor changes such as window placement, water heater or furnace location, door positioning, etc. Please contact us to verify any details seen in photos, walkthroughs, or floor plans are current.




















